Archétypes
PK
Why choose pk archetypes?
Les Archetypes PK is a R+2 residential project with a Penthouse, including
8 apartments of type F2 and F3, and a commercial area of 10 stores/offices spread over two levels (ground floor and 1st floor). The apartments of the Archétypes PK residence are bright and airy spaces, with high-end finishes and breathtaking views.
Whether you are looking for a modern pied-à-terre, a spacious family apartment, a real estate investment or a space for your projects, the Archétypes PK residence is the right address.
Amenities in our apartments
Generator
Lift
Nearby shops
Parking externe
et interne
Fire system
24/7 security
Apartments available
Ground floor shopping gallery
Area
42 m2 - 30 m2 - 37,5 m2 - 35 m2 - 28 m2
Parts details
Bay window on the facades and connection to the main networks (electricity and sanitation - electrical outlets, light points and water and toilet reservation). Standard tiles. Coat of white paint.
Shopping gallery 1st floor
Area
42 m2 - 39 m2 - 33 m2 - 28 m2 - 30,5 m2
Parts details
Bay window on the facades and connection to the main networks (electricity and sanitation - electrical outlets, light points and water and toilet reservation). Standard tiles. Coat of white paint.
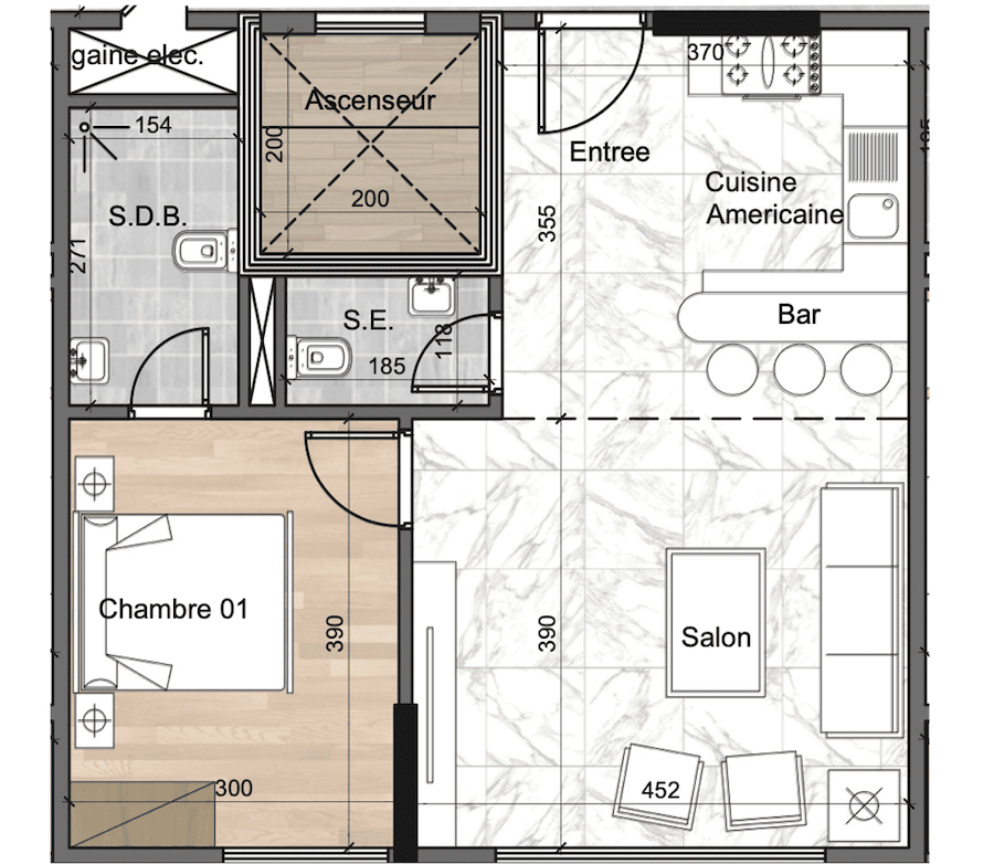
Apartment F2
Area
54 m2
Parts details
1 bedroom
1 bathroom
Visitor toilet
Living room. Dining room
American Kitchen
Apartment F3
Area
95 m2 - 98 m2 - 100 m2 - 104 m2
Parts details
2 bedrooms
2 bathrooms
Visitor toilet
Living room. Dining room
Kitchen
Balconies /Terrace
You're not dreaming, you're home!
Les Archétypes PK apartments are bright, airy spaces with top-of-the-range finishes and breathtaking views. Whether you’re looking for a modern pied-à-terre, a spacious family apartment, an investment property or space for your own projects, residence les Archétypes PK is the right address.
Delivery
24 months
Price per m²
From 1 080 000 FCFA for accommodation
From 1 700 000 FCFA for the shopping mall
Terms of payment
Initial deposit of 10% on signature of contract. Payments in monthly or quarterly instalments up to delivery date.










Project progress
Date of last update
November 2024
Availability
Gallerie Marchande : 10 Available
F2 : 2 Available
F3 : 5 Available
Convinced?
Ready to make the right choice?
Let’s start your project now.